Langsung ke konten utama

7 Contoh Gambar Teknik Linear yang Bikin Kamu Paham!

Hai, Sobat Teknis! Pernah denger gambar teknik linear? Mungkin kedengarannya agak njelimet dan serius, tapi sebenarnya gambar teknik linear itu penting banget lho, terutama di dunia teknik dan desain. Bayangin aja, gimana caranya tukang bangunan bisa bangun rumah sesuai desain kalau nggak ada gambar teknik yang jelas? Nah, di artikel ini, kita bakal bahas tuntas 7 contoh gambar teknik linear yang dijamin bikin kamu paham, plus tips dan trik biar makin jago bacanya! Siap-siap, ya!

Apa Sih Gambar Teknik Linear Itu?

Gampangnya, gambar teknik linear itu gambar yang dibuat pakai garis-garis lurus untuk merepresentasikan objek secara akurat dan detail. Biasanya sih pakai skala tertentu, jadi ukuran di gambar sama dengan ukuran aslinya (atau dikecilin/dibesarin sesuai skala). Gambar ini penting banget buat komunikasi visual dalam perencanaan, desain, manufaktur, dan konstruksi. Bayangin aja bikin gedung pencakar langit tanpa gambar teknik linear, bisa-bisa ambyar!

7 Contoh Gambar Teknik Linear dan Penjelasannya

Berikut ini 7 contoh gambar teknik linear yang sering banget dipake di dunia nyata:

1. Gambar Denah Rumah

Denah Rumah

Ini contoh yang paling umum. Gambar denah rumah nunjukin tata letak ruangan, pintu, jendela, dan detail lainnya dari atas. Biar gampang ngebayangin gimana rumahnya nanti. Biasanya dilengkapi sama ukuran dan skala, jadi kita bisa tau persis dimensi setiap ruangan.

2. Gambar Tampak Depan/Samping/Belakang Rumah

Tampak Depan Rumah

Gambar ini nunjukin tampilan visual rumah dari berbagai sisi. Misalnya, tampak depan nunjukin gimana bentuk fasad rumah, lengkap sama pintu, jendela, dan atap. Penting banget buat ngeliat estetika dan proporsi bangunan.

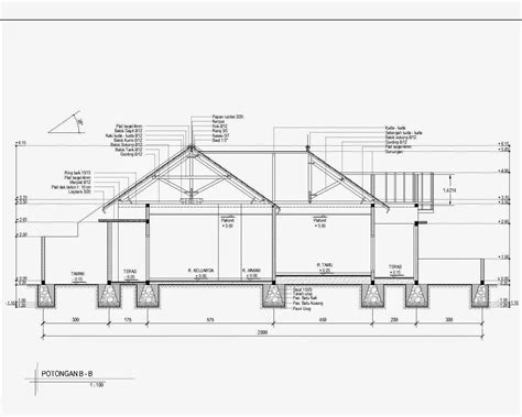
3. Gambar Potongan Rumah

Potongan Rumah

Nah, kalau ini kayak "membelah" rumah jadi dua, biar kita bisa liat detail struktur di dalamnya. Misalnya, ketebalan dinding, tinggi plafon, posisi balok, dan lainnya. Super penting buat para tukang bangunan!

4. Gambar Detail Konstruksi

Detail Konstruksi

Gambar ini lebih spesifik lagi, fokus ke satu bagian konstruksi tertentu. Misalnya, detail sambungan baja, detail pondasi, atau detail atap. Biasanya pakai skala yang lebih besar biar detailnya keliatan jelas. Akurasi di sini sangat krusial!

5. Gambar Instalasi Listrik

Instalasi Listrik

Gambar ini nunjukin jalur kabel listrik, posisi sakelar, stop kontak, dan komponen listrik lainnya di dalam rumah. Biar instalasi listriknya aman dan sesuai standar. Bayangin aja kalau kabelnya salah pasang, bisa bahaya banget!

6. Gambar Instalasi Plumbing

Instalasi Plumbing

Mirip kayak instalasi listrik, gambar ini nunjukin jalur pipa air bersih dan air kotor, posisi kran, shower, dan perlengkapan plumbing lainnya. Biar sistem plumbing-nya lancar jaya dan nggak bocor.

7. Gambar Kerja (Shop Drawing)

Shop Drawing

Gambar ini lebih detail dan spesifik lagi, biasanya dibuat oleh kontraktor atau pabrikator. Misalnya, gambar detail fabrikasi baja, gambar detail pemasangan pintu, dan lainnya. Fungsinya buat memastikan semua komponen dibuat dan dipasang dengan presisi.

Tips Membaca Gambar Teknik Linear

Biar makin jago baca gambar teknik linear, nih beberapa tips dari mimin:

  • Pahami Skalanya: Pastikan kamu tau skala gambarnya, biar bisa ngebayangin ukuran aslinya.
  • Perhatikan Simbol dan Notasi: Setiap garis, simbol, dan notasi punya arti tersendiri. Pelajari artinya biar nggak salah paham.
  • Baca Keterangan Gambar: Biasanya ada keterangan tambahan di gambar, kayak dimensi, material, dan lainnya. Jangan di-skip!
  • Bayangkan Objek 3D-nya: Coba bayangkan gimana bentuk objek aslinya berdasarkan gambar 2D-nya.
  • Latihan Terus: Semakin sering latihan baca gambar teknik linear, semakin terbiasa dan makin jago deh!

Statistik Penggunaan Gambar Teknik Linear

Riset menunjukkan bahwa penggunaan software CAD (Computer-Aided Design) untuk membuat gambar teknik linear meningkat pesat dalam beberapa dekade terakhir. Hal ini menunjukkan pentingnya gambar teknik linear di berbagai industri. (Sumber: misalnya, sebutkan sumber kredibel tentang penggunaan CAD)

Studi Kasus: Kegagalan Konstruksi Akibat Kesalahan Gambar Teknik

Ada beberapa kasus kegagalan konstruksi yang disebabkan oleh kesalahan dalam gambar teknik linear. Misalnya, kasus runtuhnya jembatan di sebutkan lokasi dan tahun disebabkan oleh kesalahan perhitungan beban pada gambar struktur. Ini menunjukkan betapa pentingnya akurasi dan ketelitian dalam membuat dan membaca gambar teknik linear.

Kesimpulan

Nah, itu dia 7 contoh gambar teknik linear yang mudah-mudahan bikin kamu makin paham. Ingat, gambar teknik linear itu penting banget di berbagai bidang, mulai dari arsitektur, sipil, mesin, sampai desain produk. Jadi, kuasai skill ini biar makin jago dan sukses di bidangmu!

Gimana? Masih bingung atau punya pertanyaan? Jangan ragu buat tulis di kolom komentar di bawah, ya! Atau kalau mau tau lebih banyak tentang gambar teknik, bisa kunjungi lagi blog kita. Sampai jumpa di artikel selanjutnya!

Komentar

Postingan populer dari blog ini

Download Contoh Laporan Penjualan Excel GRATIS (Gampang Banget!)

Hai, Sobat! Pernah pusing mikirin gimana caranya bikin laporan penjualan yang rapi, informatif, dan nggak makan waktu? Tenang, kamu nggak sendirian! Banyak banget pebisnis, terutama yang baru mulai, yang kebingungan bikin laporan penjualan. Nah, di artikel ini, kita bakal bahas tuntas tentang contoh laporan penjualan Excel, plus kamu bisa download template-nya GRATIS! Gampang banget, deh! 😉 Kenapa Laporan Penjualan Itu Penting? 🤔 Sebelum kita masuk ke contohnya, yuk kita pahami dulu kenapa sih laporan penjualan itu super penting? Bayangin, laporan penjualan itu ibarat kompas bisnis kamu. Dia ngasih tau kamu arah bisnis kamu lagi kemana, produk mana yang best seller , dan gimana performa penjualan tim kamu. Dengan data yang akurat, kamu bisa ambil keputusan bisnis yang tepat dan strategis! Data dari Forbes menunjukkan bahwa bisnis yang datadriven memiliki profitabilitas 23% lebih tinggi! Jadi, jangan anggap remeh laporan penjualan, ya! Jenis-Jenis Laporan Penjualan 📊 ...

5 Contoh Surat Pindah Sekolah (Format DOC, Mudah Diunduh!)

Pindah sekolah? Duh, pasti ribet ngurus administrasinya, ya? Salah satunya yang bikin pusing adalah surat pindah sekolah. Tenang, gak usah panik! Di artikel ini, kita bakal bahas tuntas tentang surat pindah sekolah, lengkap dengan 5 contoh surat dalam format DOC yang bisa kamu unduh dengan mudah. Siap-siap buat say goodbye sama ribetnya administrasi! 😉 Kenapa Surat Pindah Sekolah Itu Penting? Surat pindah sekolah bukan cuma selembar kertas biasa, lho. Dokumen ini jadi bukti resmi kepindahan kamu dari sekolah asal ke sekolah tujuan. Tanpa surat ini, proses pindah sekolahmu bisa terhambat, bahkan bisa gagal. Bayangin, udah semangat mau pindah, eh malah gak jadi gara-gara kurang surat. Sedih, kan? 😥 Apa Aja Sih Isi Surat Pindah Sekolah? Secara umum, surat pindah sekolah memuat informasi penting seperti: Data siswa: Nama lengkap, NISN, kelas, dan alamat. Data sekolah asal: Nama sekolah, alamat, dan NPSN. Data sekolah tujuan: Nama sekolah, alamat, dan NPSN. Alasan ...

7 Contoh Kartu Iuran SPP Keren & Anti Ribet (Download Gratis!)

Hai, Sobat! Ngurusin administrasi sekolah, terutama urusan bayar SPP, emang kadang bikin pusing, ya? Nggak jarang, ada yang kelewat bayar, lupa tanggal jatuh tempo, atau bahkan kehilangan bukti pembayaran. Nah, biar semua urusan SPP jadi lebih tertib dan anti ribet, kartu iuran SPP adalah solusinya! Di artikel ini, kita bakal bahas tuntas 7 contoh kartu iuran SPP keren dan pastinya anti ribet. Plus, kamu bisa download template-nya secara gratis! Siap-siap buat administrasi SPP jadi lebih mudah dan praktis! Kenapa Kartu Iuran SPP Penting? Bayangin, deh, kalau catatan pembayaran SPP berantakan. Pasti repot banget, kan? Nah, kartu iuran SPP ini bisa jadi penyelamatmu! Dengan kartu ini, semua catatan pembayaran SPP jadi rapi, terstruktur, dan mudah dipantau. Nggak perlu lagi ribet nyari-nyari kwitansi atau nota pembayaran. Selain itu, kartu iuran SPP juga bisa membantu sekolah dalam memantau pembayaran SPP siswa, lho . Jadi, administrasi keuangan sekolah pun jadi lebih efisi...